Informazioni di base
- Data aggiunta: Aggiunto 1 anno fa
- Camere da letto: 2
- Bagni: 1
- Locali: 4
- Piani: 8
- Piano: 6
- Superficie: 105 m²
- Dimensione del lotto: 101 m²
- Anno di costruzione: 1970
Descrizione
-
Descrizione:
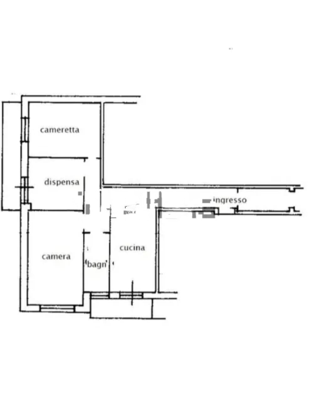
Planimetria_2024Corso Luigi Andrea Martinetti proponiamo in vendita ampio quadrilocale di mq 101 da riordinare posto al sesto piano con ascensore composto da: ingresso in corridoio, soggiorno, due camere, cucina abitabile, bagno, ripostiglio e due poggiolate, scorcio mare in edificio ordinato comodo a servizi supermercati e negozi. Richiesta € 73.000/00 trattabili.
Mostra tutta la descrizione
Chiedi a un agente di questa casa
Powered by Estatik