Informazioni di base
- Data aggiunta: Aggiunto 6 mesi fa
- Camere da letto: 4
- Bagni: 3
- Locali: 8
- Superficie: 200 m²
Descrizione
-
Descrizione:
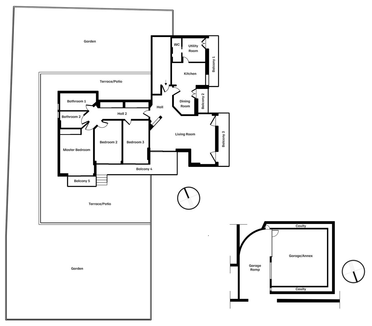
Albaro nel contesto esclusivo di Viale Arezzo proponiamo eleganti mq 200 con giardino di mq 400 ( Categoria A/2 ) composti da : ingresso , salone doppio , tre camere da letto matrimoniali , tre bagni , cucina abitabile con sala da pranzo , locale lavanderia , quattro poggioli ed un balcone terrazzato con zona vivibile , ottima esposizione . Completa la proprietà uno splendido giardino piantumato , ampia taverna con servizi con accesso dal giardino , grande box di mq 21 , posto auto esterno , e cantina di mq 15 . € 1.200.000/00
Mostra tutta la descrizione